УБС-2017
(УБС-1M) |
УНИВЕРСАЛЬНЫЙ БЛОК СОПРЯЖЕНИЯ
Для подключения мониторов Commax и совместимых с ними по интерфейсу (Kocom, Quantum, Rvi, Falcon Eye, Kenwei, Axios, J2000, и т.п.) к координатным (Визит, Элтис,Цифрал, Метаком) и цифровым домофонам ( Raikmann, Keyman, RTM, KC ).
УБС-2017 оптимизирован для работы с новыми моделями мониторов, имеющими 2 или более входов для подключения вызывных панелей. Подъездный домофон подключается вместо одной из панелей через Блок Сопряжения.Таким
образом, максимально используются функции монитора, заложенные в него производителем.
|
| |
|
Внутренний и внешний вид блока УБС-2017. Подключение производится через разъем IDC-14
Габаритные размеры УБС-2017 примерно 74мм*50мм*22мм, без учета кабеля с коннектором IDC |
| |
 |
 |
Назначение перемычек конфигурации режимов работы и выбора номера абонента для цифрового домофона |
 |
| |
|
Документацию на УБС-2017 можно скачать на странице по ссылке
|
|
|
Преимущества УБС-2017 перед другими блоками сопряжения:
1) Возможность выбрать систему домофона установкой перемычки. Универсальность.
Настройки режимов работы перемычками. Для конфигурации режимов установлены 2 разъема 16-и контактный и 10-и контактный. Перемычки 16-ти контактного разъема служат для установки номера абонента. Это делается аналогично тому, как устанавливается номер на трубках домофонов. Пермычки 10-ми контактного разъема устанавливают количество вызовов, пропущенных перед автоподнятием (3 перемычки, количество от 1-го до 8-ми вызовов), выбор системы домофона и включение/отключение работы с сигналом «СНЯТИЕ ТРУБКИ». Расположение перемычек показано на изображении выше.
2) Устойчивая работа звукового тракта без свистов и писков с хорошей громкостью.
3)
Разговорная схема для координатных домофонов гальванически развязана с общим проводом видеомонитора. Поэтому при любых конфигурациях оборудования (например, при установке многокнопочной вызывной панели на несколько квартир) исключена вероятность замыкания координат между собой. Гальваническая развязка выполнена при помощитрансформатора. Этот вариант дает результат лучше, чем вариант развязки с оптопарами, поскольку оптопары вносят нелинейные искажения в звуковой сигнал и схема с ними существенно усложняется.
4)
Возможность подстроить баланс под конкретный блок вызова домофона, установленный в подъезде. Дополнительная гарантия устойчивой работы, отсутствия писков, свистов и прочих посторонних звуков при разговоре.Регулировать/подстраивать баланс нужно при необходимости в режиме разговора – со снятой трубкой или при включенном режиме «Talk», ориентируясь на наиболее устойчивую работу всей системы домофон-монитор. Обычно, в 90% случаев УБС-2017 не требует каких либо регулировок после установки. Достаточно проверки работоспособности. Это качество выгодно отличает УБС-2017 от других БС, которые как раз в 90% случаев требуют настройки уровней звука после подключения.
5)
Возможность выбрать количество пропущенных вызовов перед «автоподнятием» (имитация снятия трубки). Другие блоки сопряжения этого делать не позволяют.Есть также возможность выбрать и другие режимы.(см. ниже)
Сложный алгоритм работы реализуется при помощи программы в микроконтроллере.
6) При работе с координатными домофонами проверка сброса вызова вызывающим абонентом (после «автоподнятия»).
Если сбросили, то примерно через 4 сек переход в режим «положена трубка». Другие блоки сопряжения переходят в «положена трубка» только после того, как погаснет монитор. При этом если набрать квартиру повторно, то домофон "Визит" не дает никаких вызовов, а сразу переходит в режим «разговор». Это сбивает посетителя с толку, а также может вызвать проблемы при работе с пультом консьержа.
7)
Можно открыть дверь подъездного домофона, не дожидаясь автоподнятия нажатием кнопки
. Блок сопряжения автоматически имитирует снятие трубки, затем нажатие кнопки открывания двери, после чего переходит в режим просмотра изображения с видеокамеры.
8)
Дополнительно можно сделать использование
сигнала «ПОДНЯТИЕ ТРУБКИ» если видеомонитор имеет подходящий выход для такого сигнала - импульсы или уровень амплитудой от 3 до 12 Вольт и длительностью более 100 мС. При этом вызовы от подъездного домофона будут поступать на монитор до тех пор, пока абонент не снимет трубку или сам домофон не прекратит вызывать (после нажатия соответствующей кнопки посетителем или автоматически).
9)
Для обеспечения нормальной работы с мониторами у которых кнопка открывания выведена на отдельные контакты (например, Hyundai HAC500, некоторые модели Kocom и Samsung) есть дополнительный вход сигнала
открывания двери .
|
|
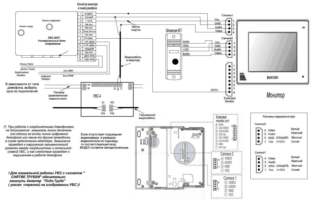
Типовая схема подключения УБС-2017 к видеомонитору RVi-VD1 |

|
|
Для передачи видеосигнала по подъезду
можно применить коаксиальный кабель РК-75, а для подключения УБС на этажах использовать РВС-4, выпускаемый фирмой «Модус». Кроме коаксиального кабеля для передачи видеосигнала применяют и витую пару, что удобнее при монтаже оборудования. В этом случае надо применять и разветвители видеосигнала по витой паре.
|
|
| Схема подключения УБС-2017 к видеомонитору Kocom KCV-A374 с использованием сигнала "СНЯТИЕ ТРУБКИ" |
 |
|
Каким образом можно узнать координатный домофон или «цифровой»? |
|
Многие домофоны позволяют однозначно определить систему по внешнему виду или марке блока вызова. Например, это широко распространенные домофоны «Визит», выпускаемые фирмой «Модус». Все они – координатные.
Но домофоны других изготовителей уже не всегда позволяют так однозначно определить их систему. Например, фирма Маршал-ТЦ выпускает как цифровые, так и координатные домофоны с одинаковым внешним видом. Это модели Маршал CD-2255 – цифровой и Маршал CD-3099 – координатный. В таком случае, при необходимости узнать систему можно предпринять следующее
- Посмотреть, какая у вас трубка ( Абонентское устройство). По внешнему виду трубки можно без труда узнать её модель и тип домофона, к которому она подходит. Кроме того, трубки для «цифровых» домофонов обязательно имеют внутри набор перемычек для установки их номера, а у координатных трубок такие перемычки отсутствуют. Если у вас в квартире нет трубки, то можно посмотреть у соседей.
- Померить напряжение на выводах абонентской линии ( два проводы, которые приходят в квартиру). Для этого понадобится тестер. На линии «цифрового» домофона всегда имеется напряжение 6…7 Вольт. Кроме того, минус линии цифрового домофона обычно соединен с «землей» - с арматурой дома и металлом электрощитков. Это соединение получается через блок вызова и металлическую дверь, на которой он установлен. Прозвонка минуса линии на связь с «землей» должна показать очень малое сопротивление .
На линии координатных домофонов при отсутствии вызова напряжение практически нулевое, за исключением случаев, когда есть пульт консьержа и включена связь «Абонент-Консьерж». При этом на линии имеются импульсы, повторяющиеся раз в несколько секунд. Для большей верности при измерении напряжения линию лучше зашунтировать резистором , сопротивлением 100 кОм – это позволит избавиться от наводок от электросети. Если на линии импульсы опроса от пульта консьержа – то это тоже признак координатной системы. Цифровые домофоны такой функции не имеют. Проводники линии координатных домофонов при отсутствии вызова не имеют связи с «землей». Прозвонка тестером должна показывать большое сопротивление.
|
|
| |
Где купить |
|
| |
|
|
ООО «Модус Трейд», город Омск
Отдел снабжения и логистики:
Тел.: 8 (3812) 51-00-93; 8 (3812) 53-26-50; 8 (3812) 95-62-34
http://modus-omsk.ru/ |
Компания “AXIVISION” :
г. Москва, Пятницкое шоссе, стр. 18, ТК «Митинский радиорынок» павильоны 5, 6, 10
+7 (495) 971-22-40
E-mail: info@axivision.ru
Сайт: http://www.axivision.ru |
ООО "ЭЛиПС Мет"
Владимирская обл., г.Александров,
тел.моб: 8-915-771-60-66
телефон:
8 (49244) 9-53-81 |
|
| |
|